2 Bedroom Cottage  Fall Through £699,950

EPC Rating F

Freehold

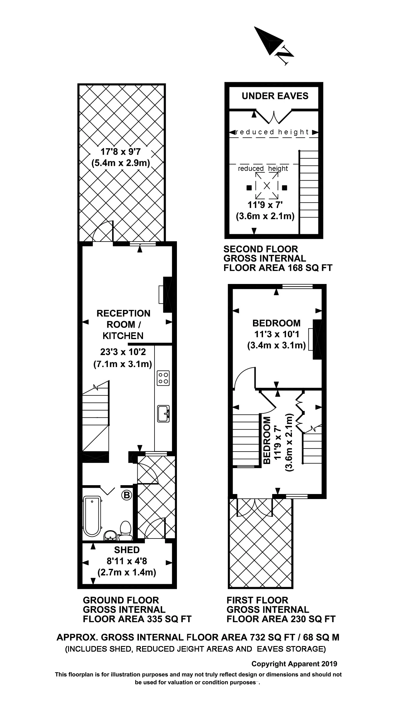
Tucked away in this peaceful corner of Barnes, this charming two bedroom cottage makes an idyllic home. Entered via a white picket gate and a good size private front garden, this property features wood floors downstairs, which includes a delightful living room open plan with fitted kitchen. The property further comprises two double bedrooms, family bathroom with free-standing tub and shower over, a sunny west facing roof terrace, and storage shed at the rear. Offered to the market with no onward chain.

EPC for Thorne Passage, Barnes, London, SW13

Energy
blank Current Potential
Energy
Current Potential

Location

Floor Plan

Floor Plan 1

Property Images

Photo 10
Photo 2
Photo 8
Photo 9
Photo 4
Photo 5
Photo 3
Photo 6
Photo 7

Arrange a Viewing

Arrange a Viewing

Mortgage Calculator

Mortgage Details

Results

Stamp duty calculation

See full breakdown

Total SDLT due

Below is a breakdown of how the total amount of SDLT was calculated

Up to £0k (Percentage rate 0 %)

Above £0k and up to £0k (Percentage rate 0 %)

Above £0k and up to £0k (Percentage rate 0 %)

Above £0k and up to £0k (Percentage rate 0 %)

Above £0k and up to £0m (Percentage rate 0 %)

Above £om (Percentage rate 0 %)

Please note: This is for illustrative purposes only. The above calculator should not be relied upon when making financial decisions. Please seek advice from a specialist financial provider.

IMPORTANT NOTICE

Descriptions of the property are subjective and are used in good faith as an opinion and NOT as a statement of fact. Please make further specific enquires to ensure that our descriptions are likely to match any expectations you may have of the property. We have not tested any services, systems or appliances at this property. We strongly recommend that all the information we provide be verified by you on inspection, and by your Surveyor and Conveyancer.

Find your next property