2 Bedroom Apartment  Let Agreed £2,100 pcm   Tenancy Info

EPC Rating D

Security Deposit £2,423.07

Available

A simply stunning two bedroom top floor flat in this period house on the Barnes/East Sheen border. The property is finished to the highest standard and offers an abundance of space and light with a superb, modern open plan kitchen diner, large living room and master bedroom and a fabulous luxury bathroom with exposed brick and double ended bath. Tenants benefit from some private outside space with a bench to the side of the property, and a small external storage unit, ideal for pushchairs.

EPC for Upper Richmond Road West, East Sheen, London, SW14

Energy
blank Current Potential
Energy
Current Potential

Location

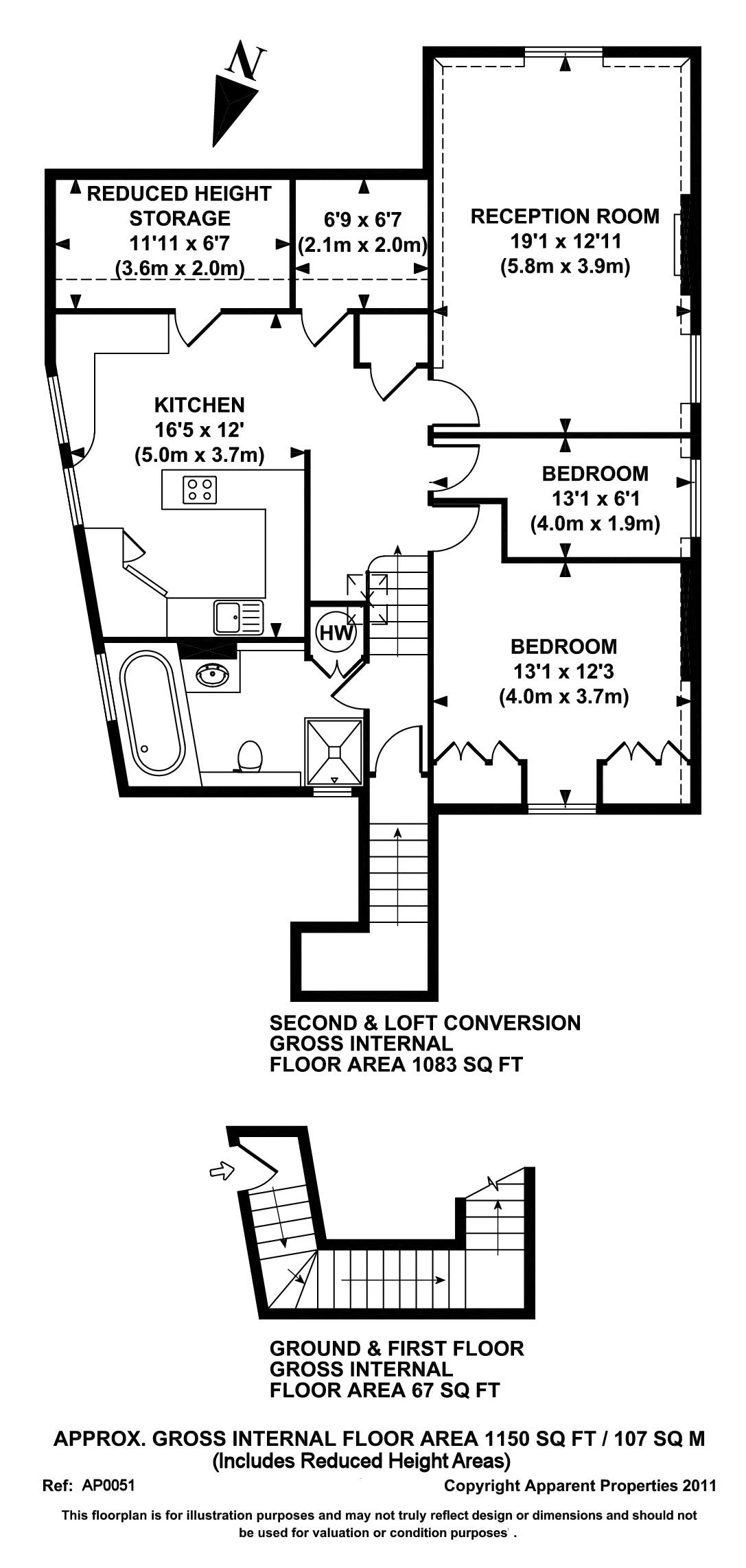
Floor Plan

Floor Plan 1

Property Images

Photo 3
Photo 2
Photo 3
Photo 4
Photo 6
Photo 7
Photo 8
Photo 2
Photo 4
Photo 1

Arrange a Viewing

Arrange a Viewing

This property is currently Let Agreed. However, register your details below and we will contact you if it becomes available again.

IMPORTANT NOTICE

Descriptions of the property are subjective and are used in good faith as an opinion and NOT as a statement of fact. Please make further specific enquires to ensure that our descriptions are likely to match any expectations you may have of the property. We have not tested any services, systems or appliances at this property. We strongly recommend that all the information we provide be verified by you on inspection, and by your Surveyor and Conveyancer.

Find your next property