5 Bedroom House  Let £8,000 pcm   Tenancy Info

Available

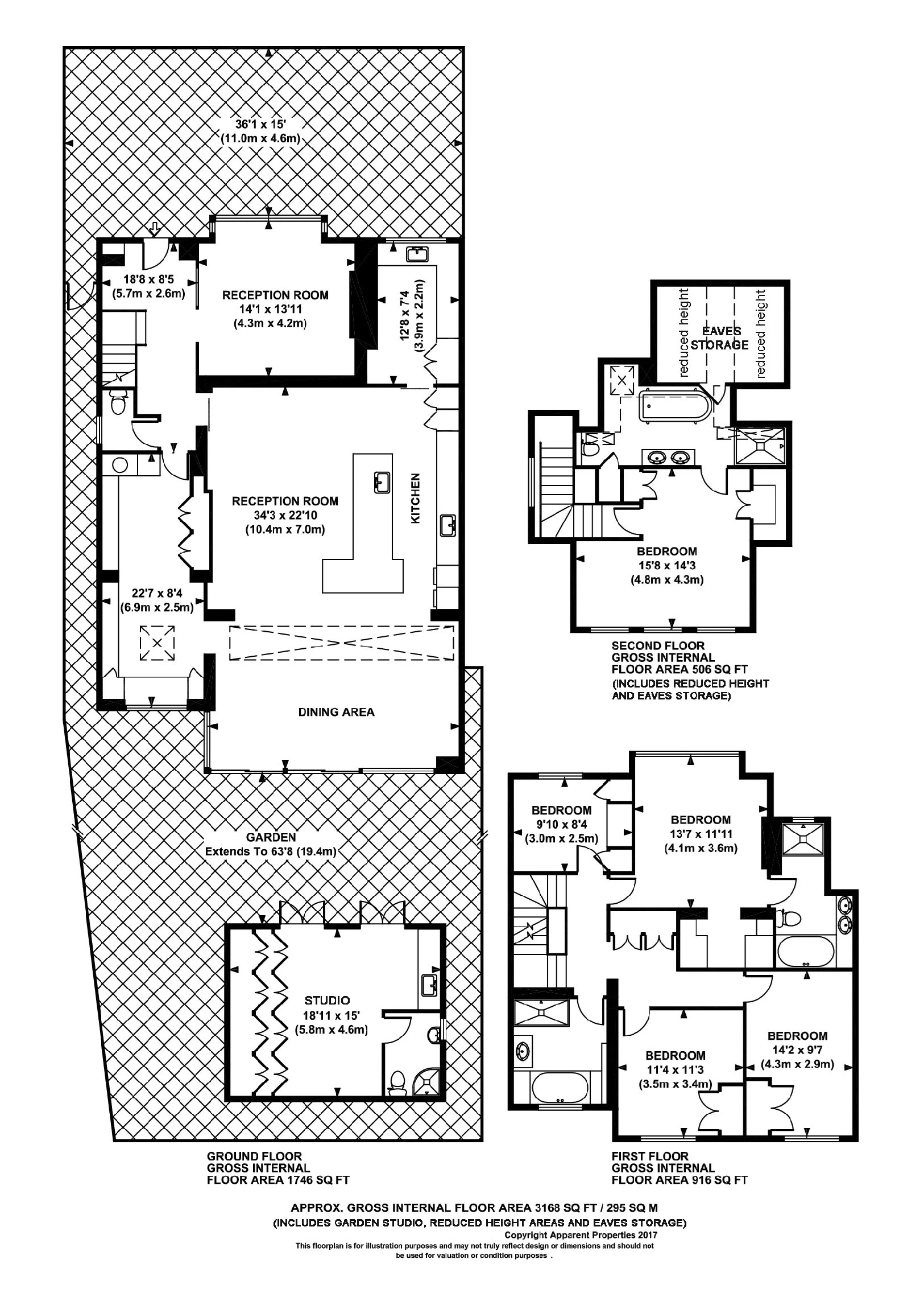
Available for short let, a stunning five bedroom family home with a stylish yet functionally designed interior, situated on an exclusive Barnes Village road a comfortable stroll from the River and Barnes High Street. The ground floor features parquet flooring and Crittal-style glass sliding doors dividing the space into a snug reception room with wood burning stove, office space and an expansive kitchen/diner leading to the garden. The designer kitchen is complete with integrated Miele appliances, and the central island is surrounded by breakfast bar and lounge seating to create a very sociable space. The bright and incredibly spacious dining area looks on to the garden and is perfect for entertaining. A utility room and cloakroom make up the ground floor. Upstairs, five good size bedrooms and three well-appointed bathrooms are set over the first and second floors, providing comfortable space for large families. The garden extends over 60 feet and features a self-contained studio, complete with kitchenette and shower room, perfect for au pairs or as guest accommodation. Off-street gated parking for one car.

Location

Floor Plan

Floor Plan 1

Property Images

Photo 26
Photo 23
Photo 22
Photo 12
Photo 28
Photo 32
Photo 21
Photo 4
Photo 3
Photo 5
Photo 7
Photo 2
Photo 8
Photo 1
Photo 19
Photo 17
Photo 20
Photo 29
Photo 31
Photo 30

Arrange a Viewing

Arrange a Viewing

This property is currently Let. However, register your details below and we will contact you if it becomes available again.

IMPORTANT NOTICE

Descriptions of the property are subjective and are used in good faith as an opinion and NOT as a statement of fact. Please make further specific enquires to ensure that our descriptions are likely to match any expectations you may have of the property. We have not tested any services, systems or appliances at this property. We strongly recommend that all the information we provide be verified by you on inspection, and by your Surveyor and Conveyancer.

Find your next property