2 Bedroom House  Sold STC £995,000

EPC Rating E

Freehold

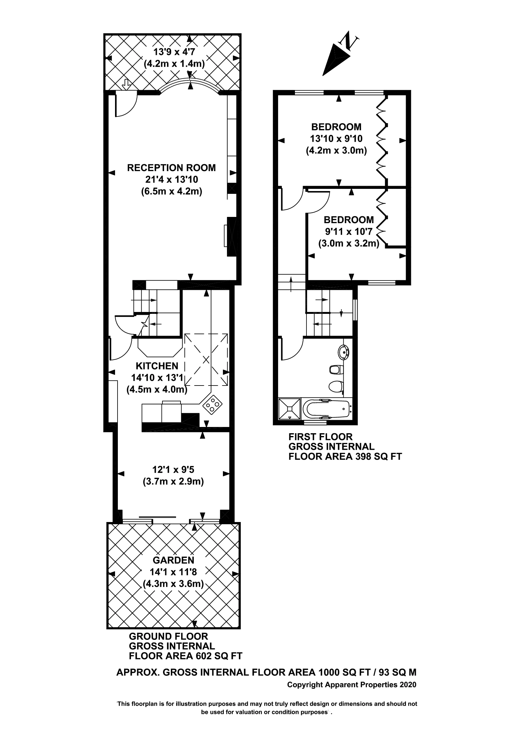
An excellent two bedroom cottage on this well-known road in Little Chelsea and the Barnes Primary catchment area, offering scope for a substantial loft extension (STPP). To the ground floor is a lovely bright double reception room leading through to a smart fully fitted kitchen and dining area with doors leading out to a paved rear garden. To the first floor are two double bedrooms with built-in wardrobes and a family bathroom. There is an excellent loft with plenty of potential to extend subject to the usual consents.

EPC for Archway Street, London, SW13

Energy
blank Current Potential
Energy
Current Potential

Location

Floor Plan

Floor Plan 1

Property Images

Photo 6
Photo 15
Photo 12
Photo 10
Photo 4
Photo 8
Photo 9
Photo 7
Photo 2
Photo 3
Photo 11
Photo 1

Arrange a Viewing

Arrange a Viewing

This property is currently Sold STC. However, register your details below and we will contact you if it becomes available again.

Mortgage Calculator

Mortgage Details

Results

Stamp duty calculation

See full breakdown

Total SDLT due

Below is a breakdown of how the total amount of SDLT was calculated

Up to £0k (Percentage rate 0 %)

Above £0k and up to £0k (Percentage rate 0 %)

Above £0k and up to £0k (Percentage rate 0 %)

Above £0k and up to £0k (Percentage rate 0 %)

Above £0k and up to £0m (Percentage rate 0 %)

Above £om (Percentage rate 0 %)

Please note: This is for illustrative purposes only. The above calculator should not be relied upon when making financial decisions. Please seek advice from a specialist financial provider.

IMPORTANT NOTICE

Descriptions of the property are subjective and are used in good faith as an opinion and NOT as a statement of fact. Please make further specific enquires to ensure that our descriptions are likely to match any expectations you may have of the property. We have not tested any services, systems or appliances at this property. We strongly recommend that all the information we provide be verified by you on inspection, and by your Surveyor and Conveyancer.

Find your next property