4 Bedroom House  Let Agreed £3,350 pcm   Tenancy Info

Four Double Bedrooms

Two Bathrooms

Spacious Through Reception Room

Large Modern Eat-In Kitchen

Private Paved Garden

Barnes Primary School Catchment Area

Desirable Little Chelsea Location

EPC Rating D

Security Deposit £3,750

Available

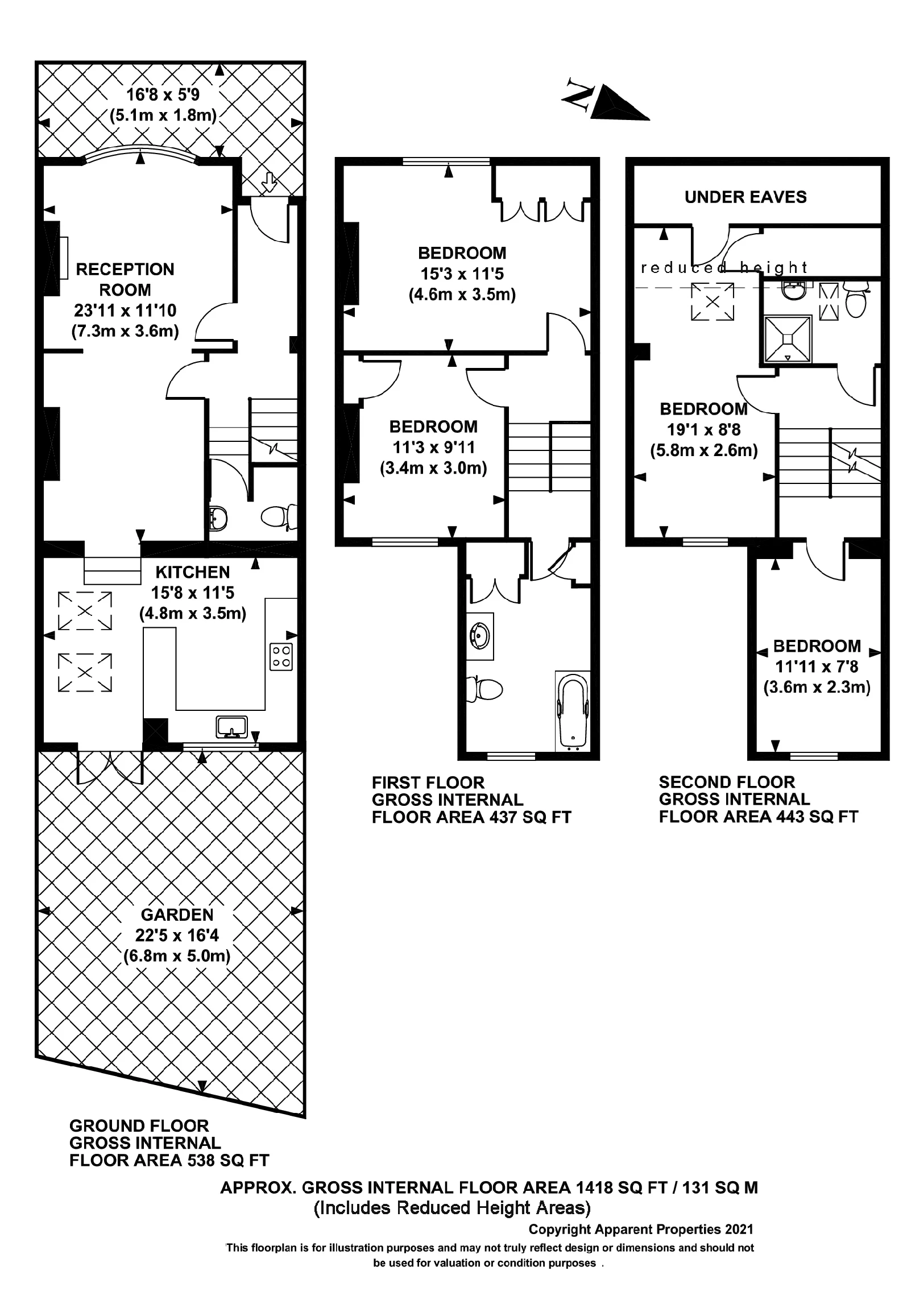
A superb cottage in the Little Chelsea area of Barnes offering four bedrooms, two bathrooms and a lovely home-from-home feel. To the ground floor is a spacious double reception room, downstairs cloakroom, and a super modern eat-in kitchen with doors to a secluded garden. To the first floor are two good double bedrooms and a gorgeous big bathroom with a shower over the bath, and utility area. On the top floor are two further double bedrooms and a shower room.

EPC for White Hart Lane, Barnes, London, SW13

Energy
blank Current Potential
Energy
Current Potential

Location

Floor Plan

Floor Plan 1

Property Images

Photo 16
Photo 3
Photo 5
Photo 2
Photo 4
Photo 19
Photo 18
Photo 6
Photo 3
Photo 8
Photo 9
Photo 7
Photo 2
Photo 14

Arrange a Viewing

Arrange a Viewing

This property is currently Let Agreed. However, register your details below and we will contact you if it becomes available again.

Virtual Tour

IMPORTANT NOTICE

Descriptions of the property are subjective and are used in good faith as an opinion and NOT as a statement of fact. Please make further specific enquires to ensure that our descriptions are likely to match any expectations you may have of the property. We have not tested any services, systems or appliances at this property. We strongly recommend that all the information we provide be verified by you on inspection, and by your Surveyor and Conveyancer.

Find your next property