2 Bedroom Apartment  Sold £499,950

EPC Rating C

Leasehold

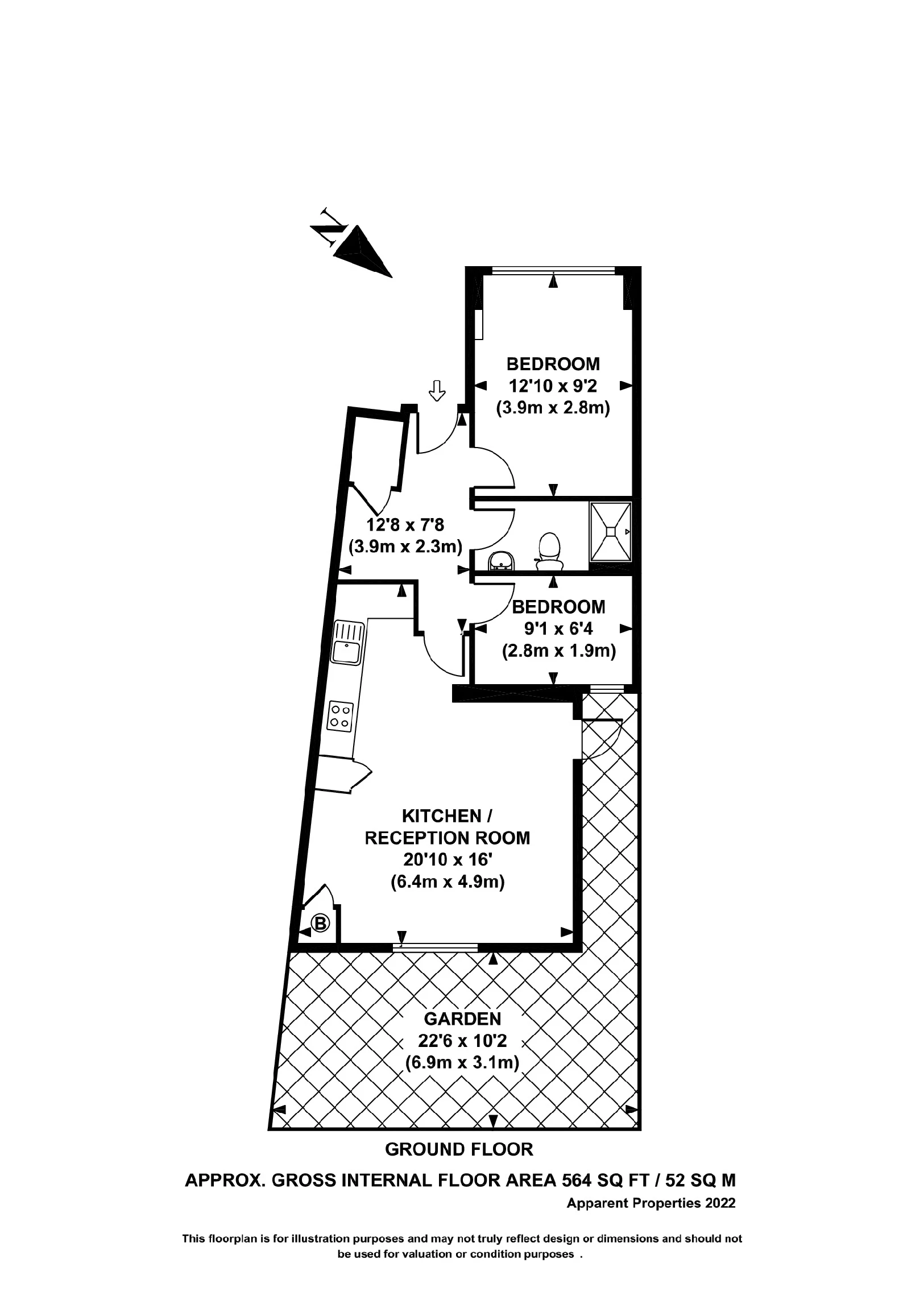
A newly refurbished two bedroom garden flat in this excellent location, close to the amenities of White Hart Lane and transport links on The Upper Richmond Road. At the front of the property is a double bedroom and a super fully tiled shower room whilst to the rear is a second bedroom / study with stunning open plan living area with fully fitted kitchen and access to the private rear garden.

EPC for White Hart Lane, Barnes, London, SW13

Energy
blank Current Potential
Energy
Current Potential

Location

Floor Plan

Floor Plan 1

Property Images

Photo 1
Photo 2
Photo 2
Photo 3
Photo 4
Photo 5
Photo 6
Photo 7

Arrange a Viewing

Arrange a Viewing

This property is currently Sold. However, register your details below and we will contact you if it becomes available again.

Mortgage Calculator

Mortgage Details

Results

Stamp duty calculation

See full breakdown

Total SDLT due

Below is a breakdown of how the total amount of SDLT was calculated

Up to £0k (Percentage rate 0 %)

Above £0k and up to £0k (Percentage rate 0 %)

Above £0k and up to £0k (Percentage rate 0 %)

Above £0k and up to £0k (Percentage rate 0 %)

Above £0k and up to £0m (Percentage rate 0 %)

Above £om (Percentage rate 0 %)

Please note: This is for illustrative purposes only. The above calculator should not be relied upon when making financial decisions. Please seek advice from a specialist financial provider.

IMPORTANT NOTICE

Descriptions of the property are subjective and are used in good faith as an opinion and NOT as a statement of fact. Please make further specific enquires to ensure that our descriptions are likely to match any expectations you may have of the property. We have not tested any services, systems or appliances at this property. We strongly recommend that all the information we provide be verified by you on inspection, and by your Surveyor and Conveyancer.

Find your next property