Beverley Path, Barnes, London, SW13

Let - £2,150 pcm   Tenancy Info

Photo 11

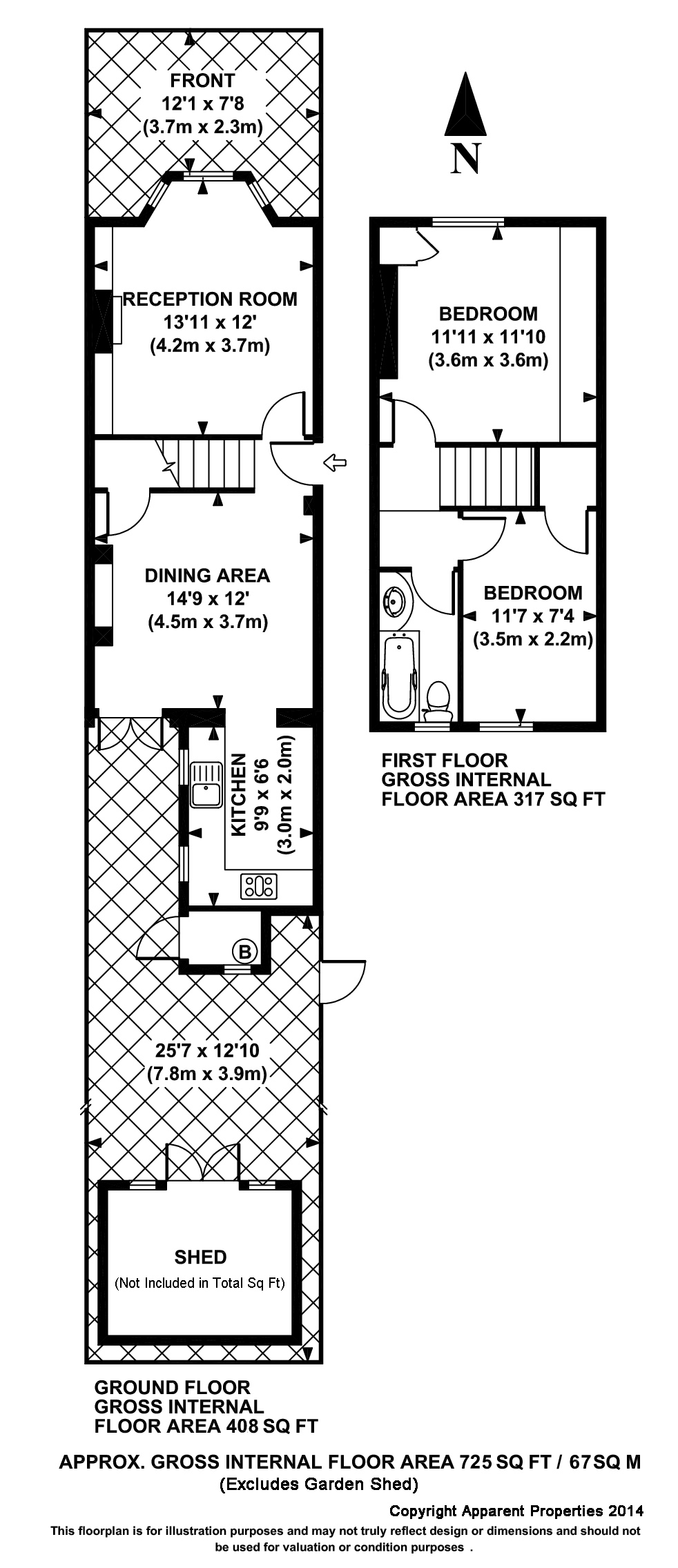
2 Bedrooms, 2 Receptions, 1 Bathroom, House, Furnished or Unfurnished

An extremely attractive two bedroom cottage set in this quiet Barnes village location just a very short walk from the duck pond, the high street, and Barnes Primary School. Unusually the house is entered from the side which gives two good reception rooms and a modern fitted kitchen with access out onto the south facing decked garden. Upstairs are two double bedrooms and a bathroom with bath and shower over.

Available


Photo 5 Photo 6 Photo 9 Photo 7 Photo 2 Photo 3 Photo 1
Branch Address
15 Church Road<br>Barnes<br>London<br>SW13 9HE
Contact
A: Apparent Properties Ltd
T: 020 8865 3300
E: john@apparentproperties.com
Reference: APPAR_002649
IMPORTANT NOTICE
Descriptions of the property are subjective and are used in good faith as an opinion and NOT as a statement of fact. Please make further specific enquires to ensure that our descriptions are likely to match any expectations you may have of the property. We have not tested any services, systems or appliances at this property. We strongly recommend that all the information we provide be verified by you on inspection, and by your Surveyor and Conveyancer.